DESARROLLO CONDESA

La Condesa, el corazón glamouroso de la CDMX.

La Condesa es una de las zonas más emblemáticas de la Ciudad de México. Su ubicación privilegiada, cerca de los lugares más icónicos de la CDMX, su oferta cultural, gastronómica y arquitectónica, y la gran cantidad de parques y áreas verdes que posee, la han posicionado como una de las colonias más demandadas para vivir.

Es un exclusivo desarrollo de 4 casas completamente independientes, ofreciendo total privacidad a sus habitantes.

Cada unidad está diseñada en medios niveles para crear conexiones entre los espacios y relaciones entre interior y exterior.

Cada casa cuenta con un acceso peatonal y vehicular completamente independiente del resto.

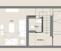
Un cajón de estacionamiento grande, bodega y medio baño, se localizan en el nivel calle. Medio nivel arriba, se localiza la sala con acceso directo a un amplio patio de 20 m2. La cocina y el comedor se encuentran en el medio nivel siguiente, ambos con acceso a un balcón que da a los árboles de la calle.

Posteriormente se localiza un espacio flexible que puede funcionar como estudio, cuarto de televisión, cuarto de juegos e inclusive como una tercera recámara, al contar con un baño completo.

En los próximos dos medios niveles se encuentran la recámara principal con vista hacia la calle de Cuautla, baño y walkin closet, y la recámara secundaria con baño completo y un amplio clóset.

La azotea se divide para posicionar los equipos en la parte posterior y toda la parte frontal es destinada a un roof garden de casi 25 m2.



Características:

NIVEL 1:


NIEVL 2:


NIVEL 3:• 


NIVEL 4:

© 2005-2025 Todos los derechos reservados.Geodevelopers Desarrollos Inmobiliarios 

Twitter @geodevelopers1